
FIENILE COCCHI
Cliente:
Privato
Luogo:
Reggio Emilia
Fotografie di Fabio Mantovani
La stretta correlazione tra le evoluzioni di un complesso architettonico e il contesto socio-economico nel quale esse accadono è particolarmente evidente ripercorrendo la storia dell’ex Distilleria Cocchi, già Casa Corradini: una corte rurale dei primi anni del ‘700 posta sulla direttrice che dalla città conduceva verso la montagna e del quale l’ex fienile costituiva uno dei corpi funzionali allo sviluppo dell’attività. L’affievolimento dell’attività agricola in questa porzione di territorio e il conseguente indebolimento del rapporto con la campagna, culmina nel 1856 con l’acquisizione del complesso da parte della famiglia Cocchi che qui installa l’omonima distilleria di liquori.Il nuovo uso e il conseguente sottoutilizzo dei fabbricati a servizio dell’attività agricola, tra i quali l’ex fienile, ha favorito negli anni il loro progressivo degrado.Una condizione che ha raggiunto il suo culmine intorno agli anni ’80, quando la Liquoreria cessa la produzione e il complesso cade in una condizione di abbandono.
Per il valore storico-artistico e testimoniale del complesso nel 1992 è stato oggetto di vincolo di tutela da parte del Ministero per i beni culturali.Sul finire degli anni ‘90 sono stati restaurati la palazzina d’angolo e il fabbricato dei braccianti che oggi ospitano abitazioni, spazi commerciali ed uffici. Quello dell’ex fienile risultava l’ultimo tassello da ricomporre e recuperare, per continuare a garantire a questo complesso architettonico altri secoli di storia.
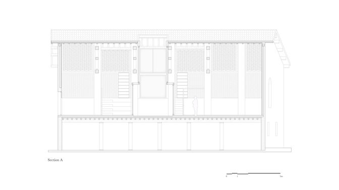
Il progetto di restauro è stato sin da subito orientato ad esaltare i valori spaziali e le caratteristiche fisiche dell’ex fienile Cocchi: un passo strutturale molto leggibile nei suoi elementi costitutivi (le paraste perimetrali e la fila di alte colonne centrali), un grande volume diviso in due aree disposte su livelli differenti ed un imponente copertura composta da capriate e travi in legno di rovere. La principale criticità relativa al riutilizzo a fini residenziali dell’ex fienile era certamente l’esiguo numero di aperture presenti, con la conseguente scarsità di luce e aerazione naturale.
Se per le camere e gli ambienti di servizio sono state realizzate delle nuove finestre a tetto, il simbolo dell’intervento, per la sua rilevanza, è certamente il patio centrale: non solo un foro nella copertura, ma un’operazione di addizione realizzata tramite l’inserimento di un grande volume di luce totalmente vetrato attorno al quale si articolano i nuovi ambienti e capace di rimarcare una chiara distinzione tra il nuovo e l’esistente. Anche la proposta di layout si articola sulla lettura dell’impianto strutturale e spaziale: la suddivisione del volume è mantenuta con la collocazione della zona notte nella parte superiore (di altezza interna più ridotta) e della zona giorno in quella inferiore. La disposizione della zona notte segue lo schema strutturale del fabbricato ed è organizzata sull’alternanza tra camere e ambienti di servizio, connessi da un generoso spazio di distribuzione in continuità fisica e percettiva con il grande open space dalla zona giorno, caratterizzato dalla storiche capriate lignee ed organizzato in due aree attorno al patio centrale.Per la scelta dei materiali e delle finiture interne ci si è basati sulla rilettura dell’esistente, costruendo intorno alle caratteristiche materiche dell’edificio una palette limitata, coerente e capace di esaltarne il valore storico ed estetico
























